Structural Designer
Aller au contenu

Siége social FSH

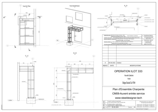
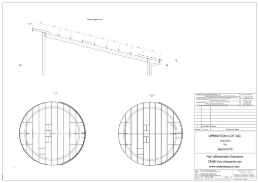
Album > Charpente metallique
Contact
Compagnon . F
Ingénieur Projeteur
5 ter Rue Barreau Marina Port du sud
98800 Nouméa Nouvelle Calédonie

Retourner au contenu